| MPN: | 7739613199 |
BUDERUS Paket Logaplus WPLS.2-8 mit Luft-Wasser-Wärmepumpe Split-Ausführung Logatherm WPLS6.2 RT, Pufferspeicher Logalux P120/5 W, 1 Heizkreis-Set ungemischt und mit Zubehör, bestehend aus:
Luft-Wasser-Wärmepumpe in Splitausführung Logatherm WPLS6.2 RT 7,7kW monoenergetisch, reversibel und mit integrierten 190l Warmwasserspeicher – 7739606552
Wärme aus Luft und Sonne: die Wärmepumpe entzieht die benötigte Wärme für das Ein- oder Zweifamilienhaus aus der Außenluft. Sie kann jederzeit mit einer Photovoltaikanlage kombiniert werden.
Die Wärmepumpe Logatherm WPLS.2 ist für jeden individuellen Heiz- und Warmwasserbedarf geeignet: mit fünf Leistungsgrößen sowie vier Inneneinheit-Varianten zwei Towerlösungen und zwei Varianten zur Wandmontage.
Die Logatherm Wärmepumpen WPLS.2 erfüllen die Qualitätsanforderungen und Kriterien des europaweiten, herstellerunabhängigen Zertifizierungsstandards: Das Gütesiegels EHPA.
Logatherm WPLS6.2 RT, reversible Luft-Wasser-Wärmepumpe in Splitausführung inklusive Tower für monoenergetischen Betrieb.
Ausstattungsmerkmale WPLS6.2 RT:
- Max. Heizleistung 7,7 kW bei A2/W35
- Wärmepumpe Logatherm WPLS6.2 RT, bestehend aus IDUS 6 T + ODU Split 6 Inneneinheit = IDUS = InDoorUnitSplit Außeneinheit = ODU Split = OutDoorUnit Split
- Verbindung zwischen Innen- und Außeneinheit mit Kältemittelleitungen
- Schnelle und einfache Installation
- Inklusive Estrichtrockungsfunktion und aktiver Kühlung
- Bis zu 55 °C (bei A>-5) Vorlauftemperatur mit der Wärmepumpe möglich
- Einfache Bedienung über EMS-plus Bedieneinheit Logamatic HMC300 mit Klartextdisplay
- 1 ungemischter Heizkreis regelbar. Für gemischte Heizkreise sind Zubehöre erforderlich
Inneneinheit (IDUS 6 T) zur WPLS6.2 RT:
- Mit EMS-plus Bedieneinheit Logamatic HMC300
- SG Ready: smart-grid-fähige Wärmepumpe ist für die Einbindung in ein intelligentes Stromnetz/eine PV-Anlage vorbereitet
- Integrierte Wärmemengenerfassung
- Hocheffiziente Heizwasserpumpe Grundfos UPM2 25/75 zur Heizwasserumwälzung für direkt nachgeschalteten Heizkreis
- Mit 9 kW elektronischer Zuheizer
- Manometer, Filterkugelhahn, Entlüfter und Sicherheitsventil
- Ausdehnungsgefäß 14 Liter
- Warmwasserbetrieb durch Tower mit integriertem Edelstahl-Warmwasserspeicher mit 190 Liter
- Wasserseitiger Anschluss Heizung: Cu 28 mm, Kalt-/Warmwasser: Cu 22 mm
- Elektronischer Anschluss: 3L/N/PE/400V/50Hz
- Wasser-Volumenstrom Heizung nominal (A7/W35, Teillast): 1,0 qm/h, maximal: 2,1 qm/h
- Anschluss Kältekreis Heißgasleitung: Bördelverb. 5/8″, Flüssigkeitsleitung: Bördelverb. 3/8″
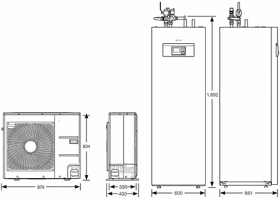
- Abmessungen (Breite / Höhe / Tiefe): 600 x 1800 x 660 mm
- Nettogewicht: 140 kg
Außeneinheit (ODU Split 6) zur WPLS6.2 RT:
- Invertergeregelter Verdichter- und Gebläsebetrieb
Technische Daten WPLS6.2 RT:
- Mod. Heizleistung (A2/W35): 2 – 7,7 kW
- Heizleistung / COP +7/35 °C: 3,3 kW / 4,8 (nach EN 14511, Teillast)
- Heizleistung / COP +2/35 °C: 3,5 kW / 3,7 (nach EN 14511, Teillast)
- Heizleistung / COP -7/35 °C: 6,1 kW / 2,4 (nach EN 14511, 100 %)
- Max. Luftvolumenstrom: 3480 qm/h
- Außenlufttemperatur min./max. Heizbetrieb: -20/+30, Kühlbetrieb: +10/+45
- Kompressor: LG Electronics Doppelrollkolbenkompressor
- Schallleistungspegel: 66 dB(A) (EN 12102)
- Kältemittelmenge R 410 A: 1,60 kg
- Kältemittelmenge für max. 7,5 m einfache Länge der Kältemittelleitung
- Max. Vorlauftemperatur (bei A>-5): 55 °C
- Elektronischer Anschluss: 1L/N/PE/230V/50Hz
- Elektronische Leistungsaufnahme (A2/W35, Teillast): 1 kW
- Anschluss Kältekreis Heißgasleitung: Bördelverb. 5/8″, Flüssigkeitsleitung: Bördelverb. 3/8″
- Abmessungen (Breite / Höhe / Tiefe): 950 x 834 x 330 mm
- Nettogewicht: 60 kg
- Klasse für jahreszeitbedingte Raumheizungs-Energieeffizienz bei 55 °C: A+
- Energieeffizienzklassen-Spektrum: A+++ -> D
- Wärmenennleistung bei durchschnittlichen Klimaverhältnissen bei 55 °C: 5 kW
- Jahreszeitbedingte Raumheizungs-Energieeffizienz bei durchschnittlichen Klimaverhältnissen bei 55 °C: 121 %
- Schallleistungspegel in Innenräumen: 38 dB
- Schallleistungspegel im Freien: 65 dB
- Klasse fÜr die Warmwasserbereitungs-Energieeffizienz: A
- Energieeffizienzklassen-Spektrum: A+ -> F
- Warmwasserbereitungs-Energieeffizienz bei durchschnittlichen Klima: 94 %
- Lastprofil: L
- Klasse fÜr jahreszeitbedingte Raumheizungs-Energieeffizienz der Verbundanlage: A+
- Energieeffizienzklassen-Spektrum: A+++ -> G
- Jahreszeitbedingte Raumheizungs-Energieeffizienz der Verbundanlage bei durchschnittlichen Klimaverhältnissen (WP): 123 %
- Klasse für die Warmwasserbereitungs-Energieeffizienz bei durchschnittlichem Klima: A
- Energieeffizienzklassen-Spektrum: A+++ -> G
- Warmwasserbereitungs-Energieeffizienz bei durchschnittlichen Klima: 94 %
Angaben in Bezug auf EU F-Gas Verordnung 517/2014:
- Umwelttechnischer Hinweis: Enthält fluorierte Treibhausgase
- Kältemitteltyp: R410A
- Treibhauspotential – GWP: 2088 kg CO2eq
- FÜllmenge Kältemittel: 1,6 kg
- FÜllmenge Kältemittel: 3,341 tCO2eq
- Bauart des Kältekreises: nicht hermetisch geschlossen
Pufferspeicher Logalux P120/5W für Wärmepumpen Logatherm – bodenstehend – 8718542920
Ausstattungsmerkmale P120/5W:
- Speicher aus Stahlblech
- Als ideale Ergänzung zur Wärmepumpe
- Tauchhülsen für Anlagenfühler
- Höhenverstellbare Füße
- Hochwirksamer Wärmeschutz aus 50 mm PU-Hartschaum und weißer Stahlblech-Verkleidung
Geeignet für:
- bis WPS 8-1
- alle WPLS.2
- alle WLW196i IR/AR
- alle WSW196i
- Heizbetrieb und stille Kühlung
Technische Daten P120/5W:
- Energieeffizienzklasse: B
- Warmhalteverlust: 46,8 W
- Speichervolumen: 120,0 l
- Speicherinhalt: 120 l
- Durchmesser: 510 mm
- Höhe: 980 mm
- Gewicht: 53 kg
- Max. Betriebstemperatur: 90 °C
- Max. Betriebsüberdruck: 3 bar
Paket bestehend aus:
- 1 Stk. Buderus Logatherm WPLS6.2 RT Split-Wärmepumpe 6kW (A2/W35) monoenergetisch und mit 190L Speicher – 7739606552
- 1 Stk. P120/5W Pufferspeicher, weiß – 8718542920
- 1 Stk. HS25/6 BU Heizkreis-Set ungemischt 6m Pumpe – 8718599200
- 1 Stk. Logafix Ausdehnungsgefäß BU-H 35 l für Heizung, max. 3 bar, silber – 7738323767
- 1 Stk. Buderus Logafix Kappenventil MS 3/4×3/4 – 82567096
- 1 Stk. aeroline Doppelnippel 1″x1″ – 8718532193
- 1 Stk. WMS 1, Wandmontage-Set für 1 Heizkreis – 67900470
- 1 Stk. Anschluss-Set AS HKV25, HS/HSM25 – 5354210
Hersteller-Artikel-Nr. 7739613199
- Broschüre
- Installationsanleitung Inneneinheit
- Installationsanleitung Außeneinheit
- Bedienungsanleitung
- Installationsanleitung Regelung HMC310
- Planungsunterlage
- Installationsanleitung Speicher P120/5 W
- Broschüre Speicher
- Installationsanleitung Heizkreis-Set
- Installationsanleitung Wandmontage-Set
- Buderus 5 Jahre Systemgarantie – Bedingungen





























Rezensionen
Es gibt noch keine Rezensionen.